
全国服务热线 语言选择 :EN

武大伟德国际1946bv官网股份有限公司
WUDAJUCHENG STRUCTURE CO.,LTD
1 技术介绍
针对某些特殊行业的钢结构工业厂房(如炼铝厂)钢屋架的加固,因安全生产和环境要求,不允许在厂房内进行焊接施工,不允许对钢构件进行打孔施工,在这样的条件下,研究了钢构件粘接与装配式加固技术,可实现钢构件的不焊接不打孔加固施工,该技术也能应用在电力塔架基础柱脚钢构件的加固工程上。
2 工程应用
2.1 青铜峡铝业股份有限公司宁东铝业分公司厂房钢结构屋架加固工程
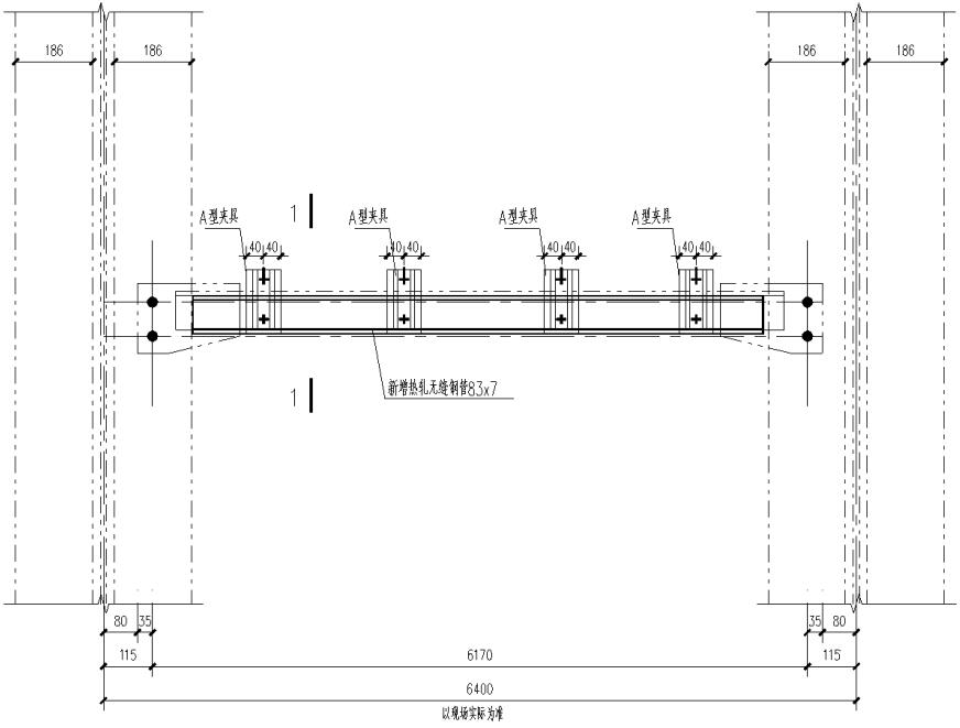
宁东铝业分公司350kA电解车间包括两幢并排的厂房,厂房为单层单跨钢筋混凝土排架结构,柱距为6.4m,每幢厂房跨度30m,长度为1004.8m,每个16个柱距设置伸缩缝一道(伸缩缝区段长为100m,以下简称“结构单元”),每幢厂房分为10个结构单元,共计20个结构单元。2014年因屋架垂直度偏差较大,经有限元计算分析,发现钢结构屋架的部分水平支撑、竖向支撑、水平系杆存在稳定性或承载力不足的情况,需加固处理。工程现场不允许对原钢构件打孔和焊接,故提出了钢构件粘接与装配式加固技术,并成功应用在该工程。
(a)宁东铝业分公司电解车间实景
(b)某杆件加固方案图
(c)加固杆件剖面图
图1 宁东铝业分公司厂房钢结构屋架加固工程
2.2 河南漯淮线铁塔基础加固工程
图2 河南漯淮线铁塔基础加固项目