全国服务热线 语言选择 :EN

027-87253366 027-87253338

设计之窗Design window

武大伟德国际1946bv官网股份有限公司

WUDAJUCHENG STRUCTURE CO.,LTD

总部:
武汉市东湖新技术开发区武大园路4号
邮编:
430223
电话:
027-87253366
027-87253338
邮箱:
wdjc@wudajucheng.com

首页 > 设计之窗 > 加固改造设计加固改造设计

结构抗震加固设计(民用建筑)

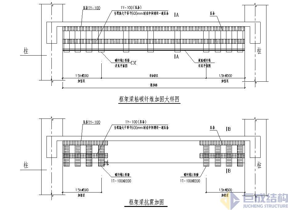
一、框架结构抗震加固设计

1、适用范围:

  主要解决一些采用老的抗震规范设计,但不满足现行抗震规范要求的框架结构,框架结构抗震设计主要以增强构件的延性和加强锚固为出发点,并结合相关加固设计规范、图集和工程经验,对框架结构的梁、板、柱进行加固以满足相关设计规范的要求。


2、设计依据

  《建筑结构荷载规范》(GB5009-2012)

  《建筑结构可靠度设计统一标准》(GBJ50068-2001)

  《混凝土结构设计规范》(GB50010-2010)

  《混凝土结构加固设计规范》(GB 50367-2013)

  《混凝土结构后锚固技术规程》(JGJ 145-2013)

  《建筑结构加固工程施工质量验收规范》(GB50550-2010)

  《建筑抗震设计规范》(GB50011-2010)

  《钢结构设计规范》(GB50017-2003)

  《建筑钢结构焊接规范》(GB50661-2011)

  《钢结构工程施工质量验收规范》(GB50505-2001)

  《建筑结构加固工程施工质量验收规范》(GB50550-2010)


3、加固大样图







 

设计范例:

  高层整体抗震加固  下载

 


二、砖混结构抗震加固设计

1、适用范围:

     主要解决一些现存的采用老的抗震规范设计,但不满足现行抗震规范要求的老旧混结构和混合结构,鉴于老的规范在抗震计算和构造措施上对结构在地震作用下可靠度较低的特点,砖混结构抗震设计主要结合相关的加固设计规范、图集和工程经验,对砖混结构的墙体、楼板等主要受力构件进行加固以满足相关设计规范的要求。


2、设计依据

《建筑结构荷载规范》(GB5009-2012)

《建筑结构可靠度设计统一标准》(GBJ50068-2001)

《混凝土结构设计规范》(GB50010-2010)(2015版)

《混凝土结构加固设计规范》(GB 50367-2013)

《混凝土结构后锚固技术规程》(JGJ 145-2013)

《建筑结构加固工程施工质量验收规范》(GB50550-2010)

《建筑抗震设计规范》(GB50011-2010)(2016版)

《砌体结构设计规范》(GB50003-2011)

《砌体结构加固设计规范》(GB50702-2011)


3、加固大样图





  

 设计范例:

   砖混结构抗震加固设计  下载