全国服务热线 语言选择 :EN

027-87253366 027-87253338

设计之窗Design window

武大伟德国际1946bv官网股份有限公司

WUDAJUCHENG STRUCTURE CO.,LTD

总部:
武汉市东湖新技术开发区武大园路4号
邮编:
430223
电话:
027-87253366
027-87253338
邮箱:
wdjc@wudajucheng.com

首页 > 设计之窗 > 结构师窗口结构师窗口

后浇清水混凝土面层设计

一、技术简介:

      清水混凝土技术在世界著名的一些地标建筑上均有有着广泛的应用,由清水混凝土本身的材质纹理带来的美感逐渐被大众所接受。面层清水混凝土技术是在既有建筑物上新浇筑面层清水混凝土,在满足结构加固同时,达到装饰的效果。相较于现浇清水混凝土主要应用于新建建筑,面层清水混凝土技术则是可应用于各种既有建筑的改造,也可以对具有安全隐患的结构进行加固,即实现建筑的安全又可实现建筑的美观,一举多得。


二、设计依据

《建筑结构荷载规范》(GB5009-2012)

《建筑结构可靠度设计统一标准》(GBJ50068-2001)

《混凝土结构设计规范》(GB50010-2010

《混凝土结构加固设计规范》(GB 50367-2013

《混凝土结构后锚固技术规程》(JGJ 145-2013

《建筑结构加固工程施工质量验收规范》(GB50550-2010

《清水混凝土应用技术规程》(JGJ 169-2009

《混凝土结构工程施工质量验收规范》(GB50204-2015

《普通混凝土配合比设计规程》(JGJ 55-2011


三、技术特点:

    应用范围较广对于各种结构形式的既有建筑均可实现。

    可为建筑结构进行加固,在美化建筑的同时也使建筑的安全性得到保障。


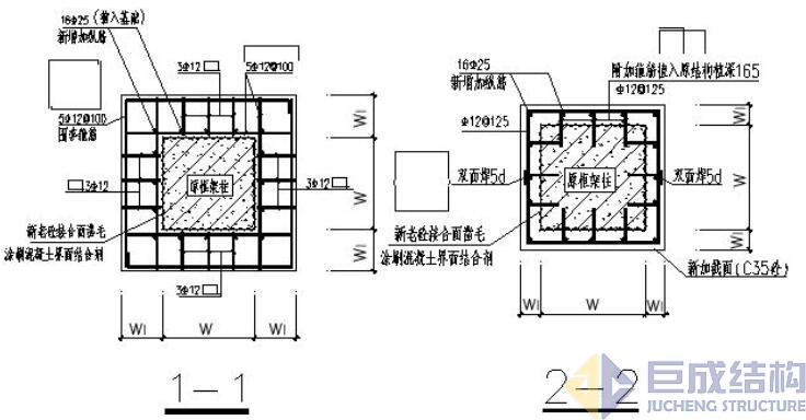
四、设计大样:



面层清水混凝土(柱)设计大样




 

  

设计范例:

           地铁清水混凝土墙结构配筋大样图  下载