全国服务热线 语言选择 :EN

027-87253366 027-87253338

创新成果Innovation results
首页 > 创新工艺

钢滑道顶升建筑物增层的施工方法

一、创新方法简介

针对现有建筑增层改造技术施工周期长、造价高、易出现事故等缺陷,提供一种钢滑道顶升增层的技术,其主要特征在于:首先对建筑物原有基础进行加固、并计算出建筑物每根框架柱需要提升的位移量;然后在距离建筑物基础顶面适宜高度上通过对每根框架柱适当加固而设置钢牛腿,在每个钢牛腿下方安装千斤顶;阶段部分框架柱,启动千斤顶,控制其位移量对框架柱进行抬升,重复抬升工作,顶升至指定高度后,在框架柱上部以下钢滑道与截断后的下部框架柱之间浇注细石混凝土,形成永久承重柱,从而完成建筑物的顶升增层。

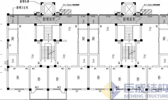
老旧小区普遍存在停车难、无休闲空间、无电梯等问题,利用钢滑道顶升建筑物增层的施工方法,可对老旧小区进行整体顶升增层改造,新增底层停车、新增楼面园林景观与休闲、并由底部向上加装电梯,达到整体提升小区功能的目的。该方法对老旧小区整体改造的主要特点包括:

1)整体改造时作业面完全打围封闭施工,避免粉尘污染、降低施工噪音,同时施工造成的部分建筑垃圾经过处理可就地填埋、作为地坪材料、节能环保。

2)整体改造时,外观可塑性强,小区外观可同步进行整体改造,旧貌换新颜。

3)住户功能改造使住户使用空间增大,提升舒适度。

4)对抗震功能改造,可提高结构整体的抗震性能,确保结构安全性。



 

顶升增层技术钢滑道及钢牛腿


 

住户功能改造


抗震功能改造


 

二、授权专利

序号

专利类型

专利名称

专利号

1

发明专利

一种钢滑道顶升建筑物增层的施工方法

ZL201510440747.3

2

发明专利

一种钢滑道顶升建筑物增层装置

ZL201510440766.6

3

实用新型专利

一种用于建筑物顶升增层的钢滑道

ZL201520544635.8

 


三、应用案例

利用顶升增层技术对老旧小区整体改造