全国服务热线 语言选择 :EN

027-87253366 027-87253338

设计之窗Design window

武大伟德国际1946bv官网股份有限公司

WUDAJUCHENG STRUCTURE CO.,LTD

总部:
武汉市东湖新技术开发区武大园路4号
邮编:
430223
电话:
027-87253366
027-87253338
邮箱:
wdjc@wudajucheng.com

首页 > 设计之窗 > 加固改造设计加固改造设计

烟囱加固设计(工业与火力发电)

一、应用范围

主要解决一些电厂钢筋混凝土烟囱由于使用年限较长或事故质量问题导致烟囱外壁、内壁及附属构件出现混凝土碳化及各类病害,导致结构的承载力和耐久性降低,结构正常运行存在安全隐患,为使结构安全可靠运行,需对原结构进行承载力和耐久性加固处理。

 

二、设计依据

《建筑地基基础设计规范》GB50007-2011

《混凝土结构后锚固技术规程》JGJ145-2004

《建筑抗震设计规范》GB50011-2010

《建筑工程抗震设防分类标准》GB50223-2008

《火力发电厂土建结构设计技术规定》DL5022-2012

《火力发电厂水工设计规范》DL/T5339-2006

《混凝土结构设计规范》GB50010-2010

《高耸结构设计规范》GB50135-2006

《建筑结构荷载规范》GB50009-2012

《混凝土结构加固设计规范》GB50367-2013

《钢结构加固技术规范》CECS7796

《烟囱设计规范》(GB50051-2013

《工业建筑防腐蚀设计规范》(GB50046-2008

 

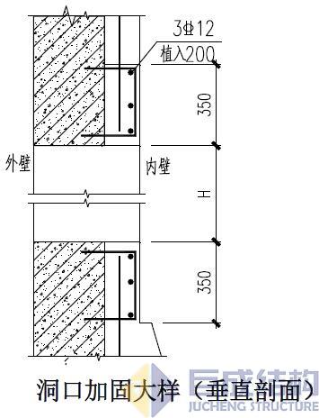
三、加固大样图




 

        

四、设计范例

 

  烟囱加固设计施工图 下载