全国服务热线 语言选择 :EN

027-87253366 027-87253338

创新成果Innovation results
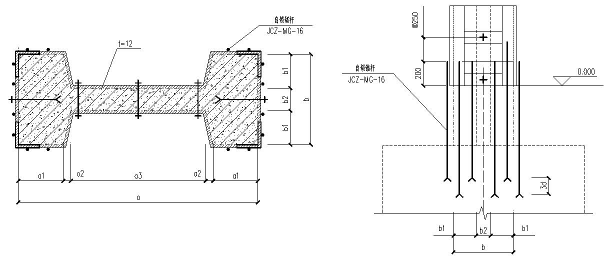
首页 > 创新成果 > 扩孔自锁锚固(专利163项)扩孔自锁锚固(专利163项)

工业与民用建筑

1 老河口水泥筒仓爆仓应急处理工程

     该项⽬位于湖北省老河口⽔泥⼚内,厂内⽣料均化库建成于2009年。库容量为2万吨。该库于2009年正式投产,为⼀座单体圆形钢筋混凝⼟筒仓结构。该⽣料均化库库体外壁在2021年8⽉22⽇突然出现破洞损坏,钢筋裸露,破坏⾯积达到56m2,库体因内部压强突变,库顶板发⽣严重的内凹变形,与钢⼚房相连接钢构件受拉发⽣严重变形以及错位。应急处理⽅式中包括包钢板加固,包钢加固中采⽤⾃锁锚杆替代化学植筋后锚固。

 

 图1 老河口水泥筒仓爆仓应急处理

 

2 安庆皖能垃圾发电⼚⼚房加固改造工程

      本⼯程为安庆皖能⽣活垃圾焚烧发电改建4号炉项⽬⼀期垃圾⼚房加固改造设计⼯程。中科环保电⼒有限公司⼚区由安庆皖能中科环保电⼒有限公司负责建设,⾃⼀期垃圾发电⼚2011年投产以来,已经⽣产运⾏近8年。在⼆期3号炉项⽬刚刚投产的情况下,统筹考虑3、4号炉建设,调整⼯艺流程及布置,对⼀期⼚房进⾏检测鉴定和加固设计。

      经改造加固设计,垃圾贮坑的内壁厚需加厚250mm,为了确保内壁新⽼混凝⼟的连接永久性,采⽤了⾃锁锚杆代替化学植筋的⽅案。

 

 

 

 

 图2 安庆皖能垃圾发电⼚⼚房加固改造

 

3 东方电机大电机房加固工程

     东⽅电机⼤电机⼚房为单层多跨钢筋混凝⼟排架结构⼚房,1959年开⼯建设,1964年、1972年、1988年分别再扩建,其中1跨为钢结构,其余各跨均为钢筋混凝⼟结构,排架柱均为混凝⼟⼯字形截⾯柱,柱距均为6m。

     ⼚房⾃建成后未进⾏结构改造,亦未改变过使⽤功能,⼀直作为⽣产⼚房使⽤。⼚房吊⻋在使⽤过程中进⾏了更换,实际使⽤吨位较原设计有所提⾼。

     经改造加固设计,对经升级改造后的屋⾯结构、吊⻋梁、柱⼦进⾏了常规加固。原设计柱加固⾄⼚房基础顶⾯处(即室内地坪标⾼以下),由于地⾯处有设备影响开挖,⽆法实施。故调整设计⽅案:在不破除地坪前提下,⽤⾃锁锚杆从地坪打孔⾄基础顶⾯以下锚固深度,代替地⾯以下原加⼤截⾯受拉钢筋。

 

 

  

 

 图3 东方电机大电机房加固

 

4 湖北移动办公大楼改造加固工程

     本工程于2012年实施。湖北移动通信办公大楼原结构为普通办公楼,楼面使用荷载为2.5kN/m2,改造后部分楼面使用荷载需提高至12kN/m2,荷载等级提高幅度较大,部分梁、板承载力严重不满足要求,需增大梁、板截面尺寸。若采用用常规混凝土增大截面的方法,一来增加的厚度加大、自重较大,导致原结构基础和框架柱需要加固;二来混凝土增大截面加固施工周期长,现场施工时间不允许。故本项目采用外粘型钢加大截面的方式大幅度提高梁、板的承载力。加固处理面积为5000平方米,用时仅38天。

       粘接型钢加固过程使⽤⾃锁锚杆替代化学植筋进⾏混凝⼟后锚固,解决⻓期使⽤耐久性的问题。

 

 

 

  

图4 湖北移动办公大楼改造加固

 

5 长沙宜家购物中心加固工程

     ⻓沙宜家购物中⼼项⽬因新增防⽕卷帘造成的楼⾯荷载增加,经加固设计,对混凝⼟板厚不满⾜设计要求处采⽤板下新增型钢结构加固处理。

     新增型钢采⽤⾃锁锚杆替代化学植筋进⾏后锚固处理,⾃锁锚杆植⼊深度浅、锚固可靠,同时解决⻓期使⽤耐久性的问题。

 

 

 

  

图5 长沙宜家购物中心加固

 

6 武汉新业大厦阳台改造工程

      武汉新业⼤厦位于江汉区汉⼝⻘年路185号,是由湖北省烟草公司规划、开发的⼩区。计划将阳台悬挑板由原1.2m增宽⾄1.8m,采⽤⾃锁锚杆替代化学植筋进⾏后锚固,锚固更可靠,解决⻓期使⽤耐久性的问题。

 

   

图6 武汉新业大厦阳台改造

 

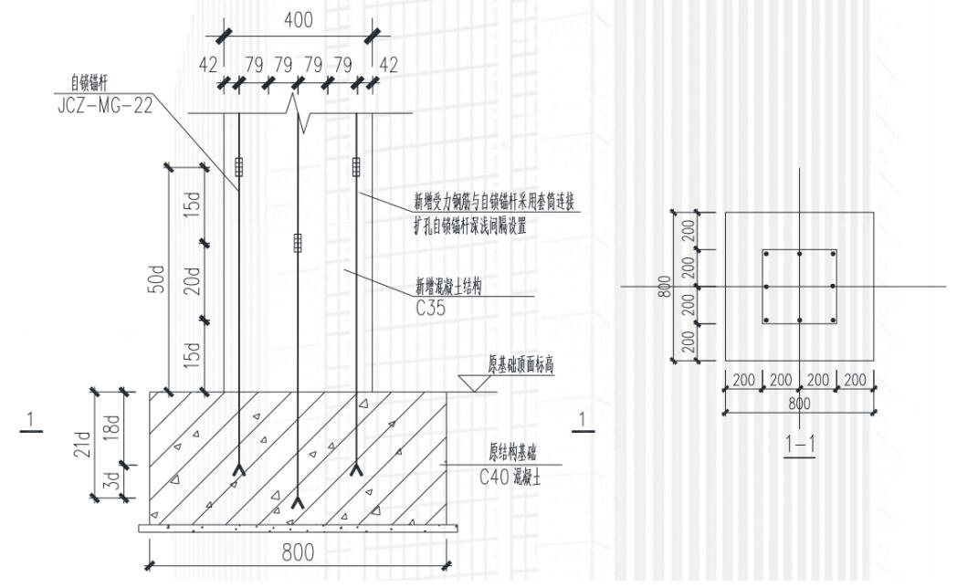
7 武汉弘毅大酒店基础加固工程

     本⼯程为武汉⼤学弘毅⼤酒店基础加固⼯程,外露基础钢筋锈蚀,切除原有钢筋,重新植筋,本⽅案采⽤⾃锁锚杆替代化学植筋,克服了化学植筋耐久性能差、安全性低、不能做到与原结构同寿命的缺点。

     由于本项⽬是采⽤⾃锁锚杆替代化学植筋,锚固⻓度是按照等强代换的原则进⾏计算,并考虑群锚效应,将群锚范围内的总⾯积等效为单⽀锚杆的⾯积,再按照相关规范规定计算基本锚固深度及锚固承载⼒。

 

   图7 武汉弘毅大酒店基础

 

8 湖北工业大学实训大楼改造工程

     湖北工业大学实训大楼于2006年建成,主体为一栋六层框架结构房屋,底部设有架空层。房屋整体平面呈矩形,总长116.400m,宽78.000m,总建筑面积43618.000㎡。架空层层高为3.2m,一~六层层高均为4.2m。建筑总高为28.4m,该房屋楼(屋)面板均为钢筋混凝土现浇板,屋面为上人平屋面。其中第5~6层及屋面层结构1-9/A-J轴区域及26-31/J-P轴区域为大悬挑有粘结后张法预应力混凝土梁结构,使用至今该区域外部悬挑区域填充墙出现斜向开裂及墙体与梁交界处水平开裂,外墙瓷砖掉落,渗水等病害现象。现需对开裂墙体及梁进行注缝胶加固处理,对局部区域进行包钢加固及局部病害修复。

 

 

 

图8 湖北工业大学实训大楼改造

 

9 武汉科技大学天佑医院加固工程

      本工程为武汉科技大学附属天佑医院应对重大突发公共卫生事件综合能力提升工程,其中感染楼为三层砖混结构(局部四层),佑安楼为五层砖混结构,并设有一层地下室。分别建于上世纪70年代与80年代,因功能及设备改造需求,需增加多处墙体开洞,增加机房及屋面设备承重,所以需对原结构进行加固。

 

 

 

图9 武汉科技大学天佑医院加固工程